Zapytaj o ofertę
Wypełnij formularz, skontaktujemy się z Tobą najszybciej, jak to będzie możliwe.
Szczegóły biurowca
- StatusIstniejący
- Data zakończenia budowy2008
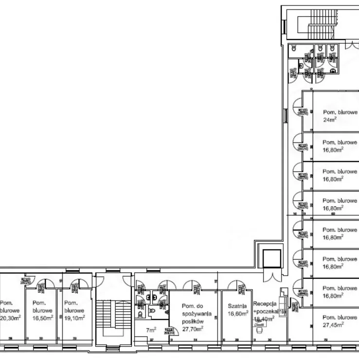
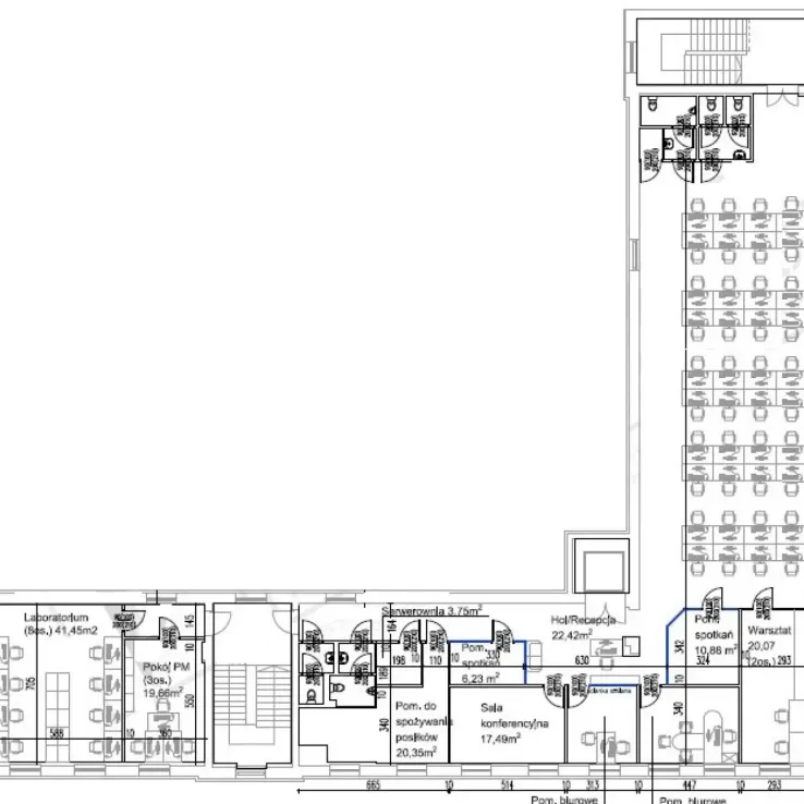
- Całkowita powierzchnia netto1 754 mkw.
- Całkowita dostępna pow. biurowa1 010 mkw.
- Całkowita dostępna pow. handlowa0 mkw.
- Klasa budynkuB
- Certyfikaty--
Warunki najmu biura
- Czynsz wyjściowy za pow. biurowąSkontaktuj się z nami
- Minimalny okres najmu (w miesiącach)Skontaktuj się z nami
- Koszty eksploatacyjneSkontaktuj się z nami
- Koszt parkingu podziemnegoSkontaktuj się z nami
- Koszt parkingu naziemnego180.00 PLN/miejsce
- Współczynnik miejsc parkingowych1/70
- Współczynnik pow. wspólnych10.00%
Standard biura Business House Gdańska - Budynek A
Bistro/kantyna
Dwa niezależne źródła zasilania
Infrastruktura dla rowerzystów
Klimatyzacja
Kontrola dostępu
Łącze światłowodowe
Ochrona
Okablowanie elektryczne
Okablowanie komputerowe
Otwierane okna
Podwieszane sufity
Recepcja
Wykładzina
Dodatkowe udogodnienia biura Business House Gdańska - Budynek A
- Budynek przyjazny zwierzętom
- Monitoring
- Okablowanie telefoniczne
- Oświetlenie LED
- Parking dla gości
- Stojaki na rowery
- Ścianki działowe
Lokalizacja biura Business House Gdańska - Budynek A
ul. Gdańska 47/49, Śródmieście, Łódź
Wszelkie prezentowane dane mają charakter informacyjny oraz nie stanowią oferty w rozumieniu przepisów ustawy z dnia 23 kwietnia 1964 roku Kodeks Cywilny (Dz.U. z 1964 roku, nr 16, poz. 93 z późniejszymi zmianami).

























